下载app免费领取会员
来源:施加咨社

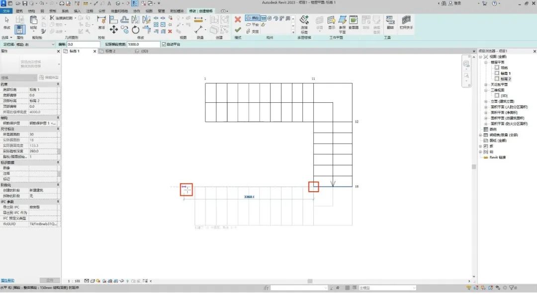
这种楼梯只需要在绘制时,分成三段直梯来绘制即可。

点击建筑选项卡中的楼梯按钮,类型选择为整体浇筑楼梯。
所需踢面数修改为30,定位线修改为梯段:右。
先绘制第一段梯段。

然后是第二段。
这里我们需要注意的是,要对齐第一段梯段的外边缘进行绘制,会有这条蓝色虚线提示。

我们从端点开始绘制。

接着是第三段,也要注意对齐边缘进行绘制。

点击完成按钮,切换到三维视图观察一下。

完成。

本文版权归腿腿教学网及原创作者所有,未经授权,谢绝转载。
上一篇:Revit技巧 | Revit软件是做什么的?BIM软件典型代表——Revit
下一篇:Revit技巧 | 桥梁建模用Revit合适吗?Revit在桥梁建模中的表现
推荐专题