下载app免费领取会员
今天分享一篇介绍Revit翻模插件的公众号文章,来源是朝孚BIM,由于文章时间较早,因而里面的插件价格可能会有些变动,对此小伙伴们参考一下就好了。

分享一下国内一些经济实惠的翻模软件(建议使用前已经对revit可以熟练操作的前提下使用)以下的报价均为官网价格,介绍不分先后。
晨曦翻模软件:

用户界面:分为晨曦bim土建、晨曦bim钢筋、晨曦bim翻模四款收费软件,翻模部分只用于建筑结构翻模和钢筋转化,机电翻模暂时没有。
晨曦bim土建

晨曦bim钢筋

晨曦bim翻模

标高可以在工程设置中批量设置标高。见图1.1

图1.1
转换轴网,提取轴网的标注图层和轴网的边线图层,一键生成。见图1.2

图1.2
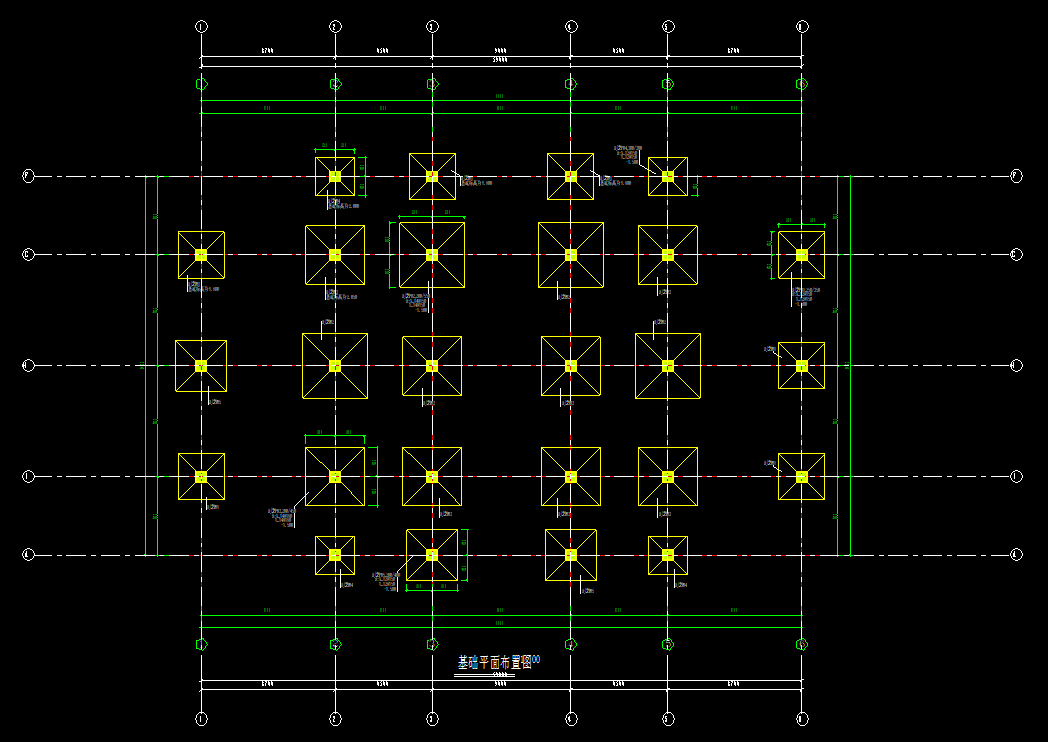
独立基础翻模,该图纸上的独立基础无法进行翻模,见图1.3;但可以一键自动生成垫层。见图1.4

图1.3

图1.4
结构柱翻模,用晨曦翻模结构柱可以识别完全,见图1.5;且模型名称和CAD图纸对应的名称一致。见图1.6

图1.5


图1.6
对梁板施工图进行翻模,模型没有错误,不需调标高,在本层标高绘制自动调整上一个标高。见图1.7

图1.7
楼板绘制,只可以点选生成楼板。见图1.8

图1.8
内外墙和门窗的绘制
晨曦内外墙可一键生成,但不能识别门窗的位置,使其墙体不连贯见,图1.9;内外墙需手动改其类型属性,方便后续材质的添加,门窗识别不了。

图1.9
钢筋翻模,需要手动钢筋定义后,见图1.10;框选自动生成钢筋。见图1.11

图1.10

图1.10
橄榄山翻模软件:

用户界面:分为土建,机电,精装三款收费软件,全专业翻模。
GLS 土建

GLS 机电

GLS 精装

标高可以在楼层管理器中批量设置标高。见图2.1

图2.1
转换轴网,提取轴网的标注图层和轴网的边线图层,一键生成。见图2.2

图2.2
五.独立基础翻模,只可以对单阶矩形或者圆形的基础进行翻模,该图纸上的独立基础无法进行翻模。见图2.3;基础垫层框选自动加上垫层。见图2.4

图2.3

图2.4
六.结构柱与墙提可以综合翻模,墙柱可以识别,并能够实现一键剪切墙柱与墙重叠部分的问题。见图2.5

图2.5
七.对梁板施工图进行翻模,除出现一两处尺寸识别的错误,大体的梁模型无误。(红色区域显示是该尺寸无法识别到,有错误)一层梁见图2.6;二层梁见图2.7

图2.6

图2.7
八.楼板的绘制,橄榄山分为点选建板和框选建板两个功能,可实现一键成板,自行分割功能。见图2.8

图2.8
九.内外墙和门窗的绘制,橄榄山内外墙翻模一键生成,见图2.9,内外墙需手动改其类型属性,方便后续材质的添加,门窗插件给出的族不能满足于设计要求,需要手动添加。见图2.10

图2.9

图2.10
十.机电翻模;暖通翻模拾取图层后一键识别,风管识别无误,空调水管图和采暖主干图,由于cad底图标注尺寸问题,无法自动识别管道尺寸。见图2.11可以智能翻弯,消除各系统管线的碰撞。见图2.12

图2.11

图2.12
今天就先分享到这,现在的翻模插件很多,找一个适合自己的会节省大量的时间,省出的时间可以更好针对模型调整和优化提出合理的方案,而不是把时间用到建模上
本文版权归腿腿教学网及原创作者所有,未经授权,谢绝转载。
上一篇:Revit技巧 | Revit怎么画瓦片屋顶?Revit中关于古建筑瓦片的画法
下一篇:Revit技巧 | 为什么Revit楼板没有显示?Revit中楼板子图元消失的原因
推荐专题