下载app免费领取会员
场地在Revit三维视图中看到的都是以面的形式存在,但在剖面和立面视图时却可以显示地表厚度,并可以控制剖面显示样式。
以优比服务的合肥规划展览馆项目(如图216)为例,当我们用功能区“视图>剖面”命令创建一个剖面,可得到图217所示视图。

图216优比服务项目-合肥规划展览馆

图217剖面视图
但在该视图中并未显示出施工图常用的室外场地的填充,这时,可以点击功能区“体量和场地”下的“场地建模”面板旁的小箭头,在弹出的如图218所示的对话框中,设置想要的剖面填充样式。注意此处的剖面填充样式也就是所选材质的“截面填充图案”。

图218场地设置窗口
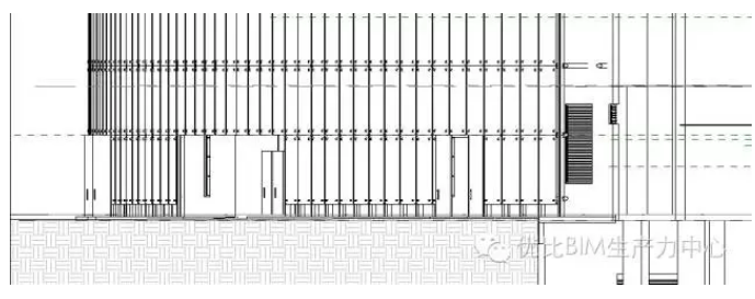
设置好后,如图219所示,剖面视图上就可以显示出室外场地的填充了。

图219显示场地填充
而且在着色模式下,填充图案仍可显示出来(如图220)。

图220着色模式下的场地填充
Revit中文网作为国内知名BIM软件培训交流平台,几十万Revit软件爱好者和你一起学习Revit,不仅仅为广大用户提供相关BIM软件下载与相关行业资讯,同时也有部分网络培训与在线培训,欢迎广大用户咨询。
网校包含各类BIM课程320余套,各类学习资源270余种,是目前国内BIM类网校中课程最有深度、涵盖性最广、资源最为齐全的网校。网校课程包含Revit、Dynamo、Lumion、Navisworks、Civil 3D等几十种BIM相关软件的教学课程,专业涵盖土建、机电、装饰、市政、后期、开发等多个领域。
需要更多BIM考试教程或BIM视频教程,可以咨询客服获得更多免费Revit教学视频。
本文版权归腿腿教学网及原创作者所有,未经授权,谢绝转载。
上一篇:Revit技巧 | revit楼梯顶部和楼板接不上怎么办?Revit上下层楼梯交接不正确如何处理?
下一篇:Revit技巧 | revit管道怎么改坡度?如何一次修改连续的管道坡度?
推荐专题