下载app免费领取会员
来源丨益埃毕教育
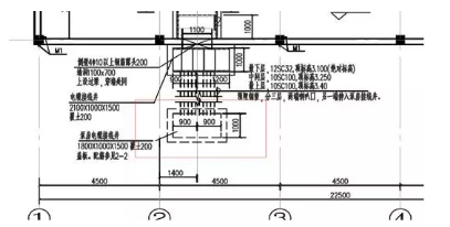
问题背景如图:

在电子版施工图中,根据图中所给尺寸标注,无法得知泵房电缆接线井与建筑轴线距离。下面通过Revit对此电子版施工图进行尺寸测量(忽略图中折断线)。
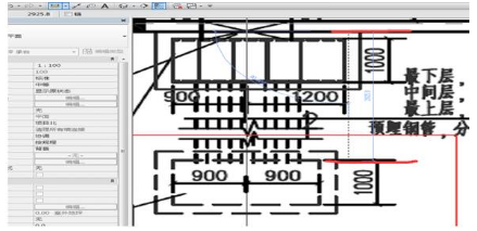
1.导入图像文件,在Revit插入选项栏中,点击“图像”将图片文件导入至Revit中。如图:

2.在注释栏中,点击“测量两个参照之间的距离”按钮对图中实际标注为1000mm的尺寸进行测量。测得距离为2189mm,如图:

3.调整图像比例,点击选中图片文件,在“属性”面板中,勾选“固定宽高比”按钮,然后将图像宽度乘以缩放比例【施工图实际尺寸大小(1000)/第二步中测量距离(2189)】。如图:

4.在调整后的“图像文件”中测量接线井与建筑轴线距离。在注释栏中,点击“测量两个参照之间的距离”对电缆接线井与建筑轴线距离进行测量所得尺寸即为项目实际尺寸。如图:

-END-
Revit中文网作为国内知名BIM软件培训交流平台,几十万Revit软件爱好者和你一起学习Revit,不仅仅为广大用户提供相关BIM软件下载与相关行业资讯,同时也有部分网络培训与在线培训,欢迎广大用户咨询。
网校包含各类BIM课程320余套,各类学习资源270余种,是目前国内BIM类网校中课程最有深度、涵盖性最广、资源最为齐全的网校。网校课程包含Revit、Dynamo、Lumion、Navisworks、Civil 3D等几十种BIM相关软件的教学课程,专业涵盖土建、机电、装饰、市政、后期、开发等多个领域。
需要更多BIM考试教程或BIM视频教程,可以咨询客服获得更多免费Revit教学视频。
本文版权归腿腿教学网及原创作者所有,未经授权,谢绝转载。
上一篇:Revit技巧 | Autodesk Revit在执行缩放或平移操作后出现崩溃
下一篇:Revit技巧 | revit链接文件怎么编辑?Revit如何修改链接文件,灵活整合模型
推荐专题