下载app免费领取会员
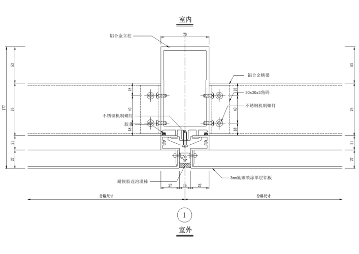
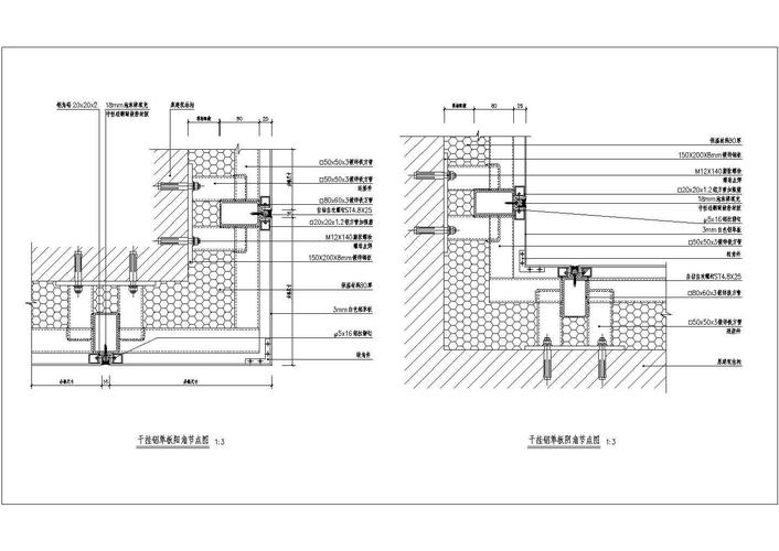
本文将详细介绍如何有效解读铝单板节点图。铝单板节点图是铝单板施工中非常重要的一项工作,它可以帮助工程师和施工人员更好地理解和掌握铝单板的结构和连接方式。通过正确解读铝单板节点图,可以确保施工过程中的安全性和质量。

首先,解读铝单板节点图的第一步是理解其基本原理。节点图是一种用于描述铝单板构件连接形式的图纸。它通常由平面图和立面图组成。平面图展示了铝单板构件在平面上的布置和连接方式,而立面图则展示了构件在垂直方向上的分布和连接方式。

要有效解读铝单板节点图,需要能够识别节点图中的各个部分。首先,要了解节点图中使用的符号和标识。常见的符号包括箭头、横线、斜线等,它们表示不同的连接方式和连接部位。此外,节点图中还可能包含文字说明和尺寸标注,需要注意理解和解释这些信息。
节点图中的连接方式是解读的重点之一。铝单板的连接方式主要包括螺栓连接、焊接连接和剪力连接等。通过分析节点图中的连接方式,可以了解每个节点的受力特点和施工要求。例如,螺栓连接一般适用于需要拆卸和更换的部位,而焊接连接则更加稳固和耐久。
节点图中的尺寸和标注对于施工过程非常重要。通过节点图中的尺寸和标注,可以确定每个节点的具体尺寸和定位。因此,在解读节点图时,需要仔细测量和理解节点图中的尺寸和标注,并与实际施工相结合,确保每个节点的精确制作和安装。
节点图中还包含了铝单板构造细节的信息。这些细节可以帮助施工人员更好地理解和掌握构件的制作和安装方法。例如,节点图中可能标注了不同构件的厚度、形状和加工方式等。通过理解节点图中的构造细节,可以避免在施工过程中出现错误和失误。
最后,为了确保解读准确,需要将节点图与设计和规范进行对比。设计和规范中通常也会包含有关节点连接方式和尺寸的要求。通过对比节点图和设计规范,可以发现并纠正任何不一致之处,并确保施工过程符合相关的要求和标准。
总结起来,要有效解读铝单板节点图,需要理解其基本原理,识别图中各个部分,分析连接方式,注意尺寸和标注,理解构造细节,并与设计规范进行对比。通过正确解读铝单板节点图,可以确保施工过程的质量和安全性。
本文版权归腿腿教学网及原创作者所有,未经授权,谢绝转载。
上一篇:Revit技巧 | revit自适应体量教程:关于Revit中巧用自适应和体量族制作莫比乌斯环
下一篇:Revit技巧 | revit端点锁定怎么做?Revit中快速添加盲板
推荐专题