下载app免费领取会员
文章来源:学天BIM学院
看了上面的图片,是不是觉得这些灯笼非常漂亮,这些就是咱们中国的宫灯,又称宫廷花灯,是中国彩灯中最富有特色的传统手工艺品之一。宫灯始于东汉,盛于隋唐,具有浓厚的地方特色,宫灯顾名思义是皇宫中用的灯,主要是些以细木为骨架镶以绢纱和玻璃,并在外绘以各种图案的彩绘灯,它以雍容华贵、充满宫廷气派而闻名于世。那今天咱们就来用BIM来建立一个属于自己的宫灯。宫灯的制作需要用到做族的相关知识,那么什么是族?族又有什么用呢?
首先明确,AutodeskRevit中的所有图元都是基于族的。建模的过程实际上就是把不同的族拼装在一起,族像是零件,而制作族就是制作一个新的零件,可以用在模型中。
建模时的异形结构,装配式高度定制的构件,机电项目中的各种型号的设备,都是需要制作或者对已有的族进行编辑才能得到的,
多练习族的制作,才能让你在之后的项目中提高模型精度和建模速度。
PS:偷偷告诉你们,有些高端族可以直接满足机械加工精度要求哦,设备厂家采购这种族价格很高,所以也有一些人专门做族或靠卖族赚钱,收入也是相当可观呢。
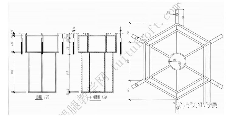
咱们先来看下用BIM做出的宫灯的整体样式



宫灯模型制作步骤
咱们先来看下尺寸

1、打开软件--点击新建族--选择公制常规模型;

2、点击创建--选择拉伸--开始创建轮廓;现在开始创建出一个你想要的宫灯轮廓,本阶段在绘制时都是在平面图中进行的。将宫灯轮廓的材质设置为自己想要的;






3、点击创建--还是选择拉伸--创建宫灯上的玻璃,咱们在平面上创建时,可以使用拾取轴,设定好偏移之后可以快速地绘制完轮廓。将创建出的图元的材质设为玻璃。

4、点击创建--使用拉伸和旋转--创建宫灯的穗部,创建完成一个之后将材质设为自己想要的颜色,然后可以将这个穗成组,然后进行阵列,分别布置到宫灯的角上。


5、对模型进行美化,利用拉伸等命令,画出蜡烛、把手等部位。

教程结束啦
跟着大神一步步操作
是不是特别很简单呢
大家可以多发挥才智
创造出更多更好看的东西哟
Revit中文网作为国内知名BIM软件培训交流平台,几十万Revit软件爱好者和你一起学习Revit,不仅仅为广大用户提供相关BIM软件下载与相关行业资讯,同时也有部分网络培训与在线培训,欢迎广大用户咨询。
网校包含各类BIM课程320余套,各类学习资源270余种,是目前国内BIM类网校中课程最有深度、涵盖性最广、资源最为齐全的网校。网校课程包含Revit、Dynamo、Lumion、Navisworks、Civil 3D等几十种BIM相关软件的教学课程,专业涵盖土建、机电、装饰、市政、后期、开发等多个领域。
需要更多BIM考试教程或BIM视频教程,可以咨询客服获得更多免费Revit教学视频。
本文版权归腿腿教学网及原创作者所有,未经授权,谢绝转载。
下一篇:Revit技巧 | Revit教程:Revit体量中三棱锥及多棱锥的绘制方法
推荐专题