下载app免费领取会员
文章来源:新点培训
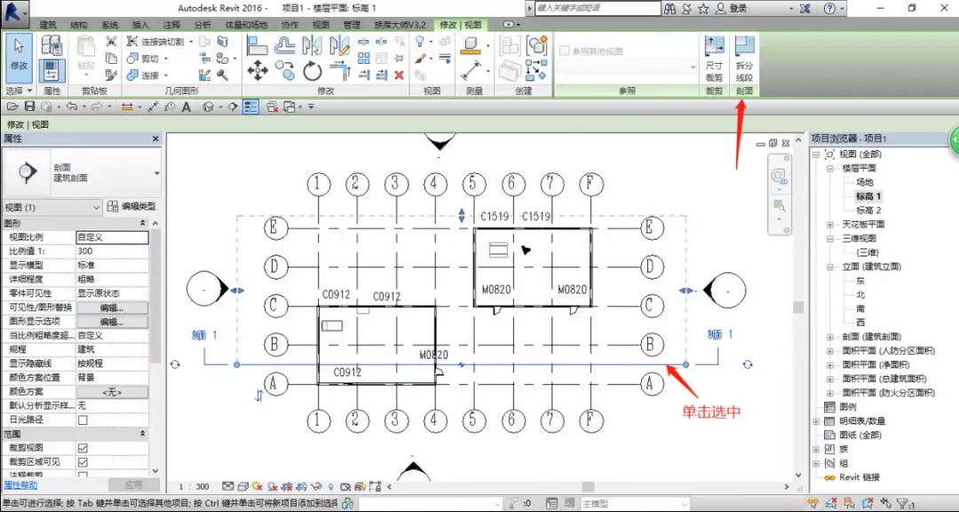
大家好,本期给大家分享的是在Revit中阶梯状剖面图的创建和应用。在平时的操作过程中,当我们需要查看一幢建筑中两个不同房间内部的情况时,我们就需要对这两个房间作剖面图(如图一)。

(图一)
那么,一张剖面图可以同时查看两个房间的情况吗?具体步骤如下:
首先,我们先为左下方的房间创建一个剖面。接着,我们选中该剖面图,找到右上方的拆分线段按钮并点击(如图二)。

(图二)
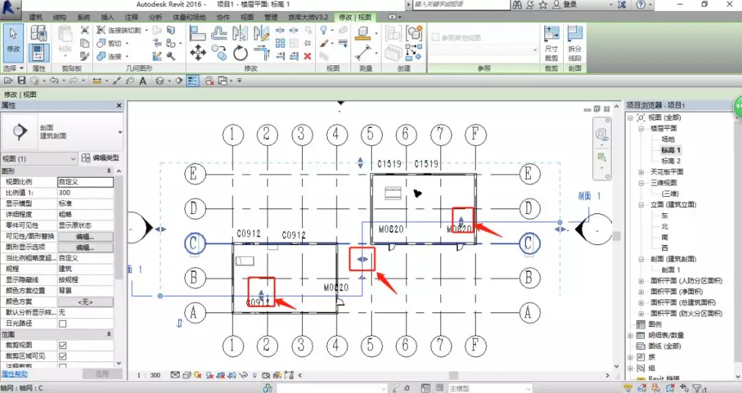
然后,鼠标箭头就会变成一支笔的形状,我们只要在需要拆分的位置进行拆分,拆分完毕后,通过拖动剖面线上的箭头进行调整,我们的阶梯状剖面就完成了。(如图三)

(图三)
最后,大家就可以在一个剖面图中看到上图中两个房间的内部剖面情况了。
Revit中文网作为国内知名BIM软件培训交流平台,几十万Revit软件爱好者和你一起学习Revit,不仅仅为广大用户提供相关BIM软件下载与相关行业资讯,同时也有部分网络培训与在线培训,欢迎广大用户咨询。
网校包含各类BIM课程320余套,各类学习资源270余种,是目前国内BIM类网校中课程最有深度、涵盖性最广、资源最为齐全的网校。网校课程包含Revit、Dynamo、Lumion、Navisworks、Civil 3D等几十种BIM相关软件的教学课程,专业涵盖土建、机电、装饰、市政、后期、开发等多个领域。
需要更多BIM考试教程或BIM视频教程,可以咨询客服获得更多免费Revit教学视频。
本文版权归腿腿教学网及原创作者所有,未经授权,谢绝转载。
上一篇:Revit技巧 | Revit轮廓族怎么使用?revit如何快速的创建建筑造型
下一篇:CAD教程 | 高等教育出版社发布《工程制图第三版》答案
推荐专题