下载app免费领取会员
1、我们首先新建一个公制常规模形(如图一)

图一
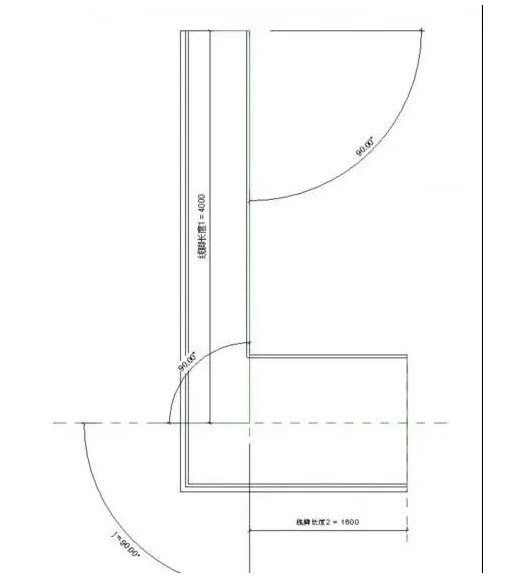
2、我们在场景中把XY轴上设置好参数、角度,并且把它们锁好。(如图二)

图二
3、选择放样,编辑路径、及轮廓,同样路径要锁好。


4、完成后效果、及测试参数。


5、如果是同样宽度但是角度不同的做到这一步就行了,注意如果两侧不一样,我们先把角度设为90度,在旁边再拉伸一个,记住一定要锁定好参照线。同时建立两个空心拉伸以便修剪他们中间接触部分。

6、修剪好后,我们再连接下,这样一个整体的不同宽度的转角飞沿出来,载入项目就可以用了。


本文版权归腿腿教学网及原创作者所有,未经授权,谢绝转载。
推荐专题