完善主体资料,免费赠送VIP会员!
* 主体类型
* 企业名称
* 信用代码
* 所在行业
* 企业规模
* 所在职位
* 姓名
* 所在行业
* 学历
* 工作性质
请先选择行业
您还可以选择以下福利:
行业福利,领完即止!

下载app免费领取会员

NULL

ad.jpg

Revit技巧 | 如何使用Revit制作平面图

发布于:2024-11-29 16:50:01
首页/技术分享/Revit
收藏
1577

BIM中文网

更多

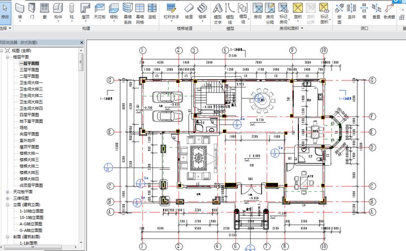
如何使用Revit制作平面图

Revit是一款功能强大的建筑信息模型软件,可以帮助建筑师和设计师制作各种建筑图纸,其中包括平面图。平面图是建筑设计中的重要一环,它展示了建筑物的整体布局和空间分配。下面将介绍如何使用Revit制作平面图。首先,在Revit的界面中选择“新建项目”以创建一个新的项目文件。然后,选择合适的模板,包括建筑模板、结构模板或MEP(机电工程)模板,根据你的需求选择合适的模板。接下来,选择“楼层”工具,用于创建建筑物的楼层。点击“楼层”按钮后,在工作区中选择一个合适的位置,然后确定楼层的名称和高度。这样,你就创建了一个基础的建筑楼层。然后,点击“墙体”工具,用于绘制建筑物的墙体。根据建筑设计方案,在楼层平面上依次点击鼠标,绘制出建筑物的外墙轮廓。Revit会自动连接相邻的墙体,并创建一个完整的建筑外墙。接下来,通过点击“门”工具和“窗户”工具,在墙体上添加门和窗户。选择合适的门和窗户类型,并按照设计方案将它们放置在合适的位置。随后,选择“房间”工具,用于标注建筑物内部的空间。点击“房间”按钮后,在墙体内部选择一个区域,然后确定这个区域的房间名称。这样,你就可以为建筑物的每个区域创建一个相应的房间。此外,通过点击“楼梯”工具或“电梯”工具,可以在建筑物中添加楼梯或电梯。选择合适的楼梯或电梯类型,并按照设计方案将它们放置在合适的位置。最后,点击“视图”选项卡,选择“平面视图”,从而查看建筑物的平面图。你可以调整视图的大小和比例,在平面图上添加文字和注释。总结一下,使用Revit制作平面图的过程包括选择合适的模板、创建楼层、绘制墙体、添加门窗、标注房间、添加楼梯电梯,并在视图中查看和编辑平面图。Revit的强大功能使得平面图的制作变得更加简单和高效。如果你是建筑师或设计师,不妨尝试使用Revit来制作平面图,提高你的设计效率和质量。

如何使用Revit制作平面图

本文版权归腿腿教学网及原创作者所有,未经授权,谢绝转载。

未标题-1.jpg

上一篇:Revit技巧 | Revit软件的工作界面由哪些元素组成?

下一篇:Revit技巧 | 如何设置 Revit 的工作平面

60acb4e0ef112.png