下载app免费领取会员
Revit软件是一种专业的建筑设计与绘图软件,它的平面图绘制功能非常强大,可以帮助建筑师和设计师快速、精确地绘制平面图。下面我们将介绍Revit软件的平面图绘制的基本步骤。

首先,在打开Revit软件后,我们需要选择一个适合的项目模板。Revit软件提供了各种不同类型的项目模板,如建筑、结构、机电等,我们可以根据实际需要选择合适的模板。
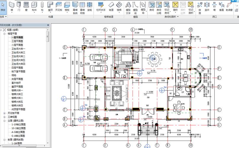
接下来,我们可以在“项目浏览器”中选择“楼层平面”视图。在这个视图中,我们可以看到整个建筑项目的平面图。我们可以通过缩放、平移等操作,对平面图进行调整,以便更好地绘制平面图。
然后,我们可以选择“建筑”或“结构”选项卡中的“绘图”工具栏。在这个工具栏中,我们可以找到各种绘图工具,如线、矩形、圆等。我们可以使用这些工具来绘制墙体、门窗、家具等元素。
当我们使用绘图工具进行绘制时,Revit软件会自动进行尺寸、对齐等方面的校正,确保绘图的精度和准确度。此外,Revit软件还可以根据我们的绘图操作,自动生成与之相关的标注、尺寸、符号等信息。这些功能大大简化了平面图的绘制过程,提高了工作效率。
绘制完平面图后,我们可以使用“编组”工具将相关元素组合在一起。这样,我们可以方便地对整个建筑项目进行管理和调整。此外,Revit软件还可以对平面图进行分层处理,以便更好地展示建筑项目的结构和组成。
最后,我们可以使用Revit软件提供的“打印”功能,将绘制好的平面图输出为打印文件或PDF文档。这样,我们就可以方便地与他人共享、交流我们的设计想法。

总之,Revit软件的平面图绘制功能非常强大,帮助建筑师和设计师快速、精确地绘制平面图。通过合理使用Revit软件的各种工具和功能,我们可以更好地展示和交流我们的设计思路,提高设计效率和质量。
本文版权归腿腿教学网及原创作者所有,未经授权,谢绝转载。
推荐专题