下载app免费领取会员
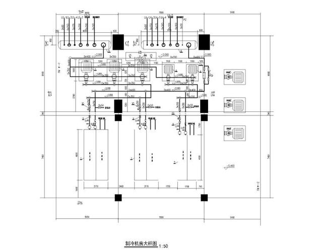
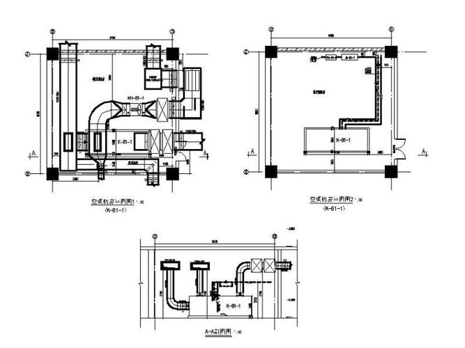
本文旨在探讨CAD绘制机房平面图的关键要素。在现代信息技术的发展中,机房作为维持信息系统稳定运行的核心场所,其平面布局的合理性对于设备的安装、维护和管理至关重要。利用CAD技术进行机房平面图的绘制,可以提高效率和准确性,因此了解关键要素对于绘制合适的机房平面图具有重要意义。

机房平面图的空间规划是绘制机房平面图的首要步骤。在进行空间规划时,需要考虑机房的大小和形状、设备的布置和数量、设备间的通道和通风等因素。一个合理的空间规划能够使机房的各个区域井然有序,方便设备的维护和管理。

在机房平面图中,设备摆放是重要的关键要素之一。合理的设备摆放可以确保设备之间的间距足够,避免设备之间相互干扰。同时,设备摆放还需要考虑设备的重量、散热和通风等因素,以确保设备的正常运行。
机房平面图中的另一个关键要素是电源布置。在绘制机房平面图时,需要标明电源线路和插座的位置,并确保电源布置符合安全规范。合理的电源布置可以确保设备能够正常供电,并方便维护和管理。
机房平面图中的网络布线是必不可少的要素之一。网络布线涉及到网络设备之间的连接方式、网络电缆的走向和长度等。在绘制机房平面图时,需要标明网络设备的位置和连接方式,以及网络电缆的走向和长度,以便于网络的维护和管理。
机房平面图的安全考虑也是非常重要的。安全考虑包括防火措施、防护设备和监控设备的安装位置等。在绘制机房平面图时,需要标明安全设备的位置和数量,并确保安全设备能够起到预防和监控的作用。
综上所述,CAD绘制机房平面图的关键要素包括空间规划、设备摆放、电源布置、网络布线和安全考虑。合理的空间规划和设备摆放可以提高机房的管理效率,电源布置和网络布线能够保障设备的正常运行,安全考虑能够提高机房的安全性。因此,在进行CAD绘制机房平面图时,需要综合考虑以上要素,以达到最佳效果。
本文版权归腿腿教学网及原创作者所有,未经授权,谢绝转载。
上一篇:Revit技巧 | Revit创建楼梯需要注意什么?关于Revit创建楼梯及相关操作
推荐专题