下载app免费领取会员
文章来源:revit室内速图
做造价的人,多数对建模不感兴趣,他只想要个量。但将来的趋势肯定是这样,模型只要建的合理,后面的统计反而很快,不需要费劲。
但是怎么建,是需要仔细考虑的。下图是revit的叠层墙,复合墙。

这个看似很美,但是不管你想做施工图,还是算量,都不能满足实际需要。
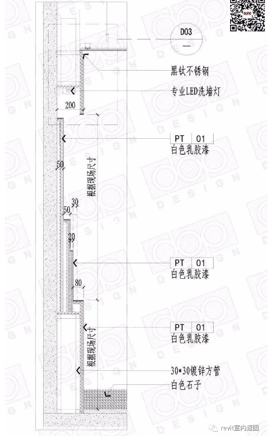
比如下面这样的内部结构

或者这样的造价分析

revit本身的墙功能,设置了很复杂的参数,但是这些你都得不到的。
我的思路是回归本源,像cad画图一样,放弃那些复杂的参数化。
我做好了这样一些详图构件,像画cad一样,画结构剖面。红色线是我想统计的面积或长度


那我有了这样一些基本构件,就可以拼起来一个想要的护墙板结构。注意红色线,是我想统计的面积或长度

然后我的程序,就能根据详图,去生成模型了。当然这里面结合了一些幕墙,龙骨,还有墙面开洞等等。

这是直接模型剖面,我觉得你要求不高的话,也能满足施工图节点的基本需要了。



最后我的程序还能得到一个统计表,这个护墙板用了多少腰线,木工板,踢脚线,饰面板。都能统计到。

revit本身的墙功能也好,或者其他的一些造型功能,我是不喜欢的,过分参数化,不能满足室内的各种复杂需要。比如随便这样一个造型,都是很难做出来的。即使做出来,你也很难统计各种用量。

所以最终我还是选择,类似cad的画图方式,画剖面,然后程序去生成模型。
有结构,有工程量,而且各种造型自己随意拼。
revit从1.0版本,到今年,已经20年了,这种大型程序的开发,楼开始盖歪了,后面就改不回来了,只能在歪的道路上继续前行。每一个非常小的变化,都要付出很大的成本。所以这些年,很难看到让人惊喜的变化了。室内这部分,基本没有任何改进,比较失望。只能自力更生了。。。

本文版权归腿腿教学网及原创作者所有,未经授权,谢绝转载。
上一篇:Revit技巧 | 防火分区面积计算怎么做?教你如何用Revit计算防火分区面积
推荐专题