下载app免费领取会员
文章来源:Revit MEP

我们都知道:做BIM综合管线调整时,各个专业和系统的净高控制尤为重要!但要靠人工逐一在大量错综复杂的管线里找出问题所在,又谈何容易?!
那么,如何在不使用任何插件的情况下,让所有MEP管线的净高范围一览无余?小易说,这跟“把大象放冰箱里”一样一样的
1.复制视图
在“项目浏览器”中找到需要检查的平面视图,
为了不影响原来的视图,先复制一个视图并打开:

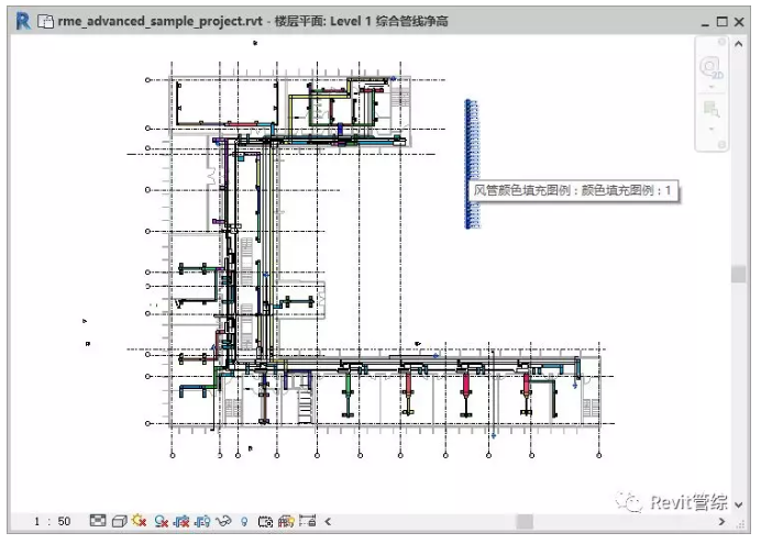
2.放置风管图例
在功能选项卡中找到“分析”>“颜色填充”>“风管图例”:

在视图中放置风管图例,先选择一个颜色方案:

放置完图例后,我们发现风管的颜色都改变了!
但这还不是我们希望的按不同净高区分的颜色......
别着急,接下来可以在配色方案中进行调整。

3.编辑配色方案
选中刚才放置的风管图例,
在功能选项卡中找到“修改”>“方案”>“编辑方案”:

在编辑颜色方案窗口按流程设置配色方案:
1)复制一个配色方案,修改成你想要的名字;
2)在“颜色”的下拉列表中选择“底部高程”;
3)选择“按范围”;
4)设置希望区分的净高值范围,选择对应的颜色。

点击确定以后,大功告成!!!

当然管道的净高检查也可以用“管道图例”的方法来实现,只是没有办法按底部高程来,至于电缆桥架Revit就没有支持了。
好了,大象已关进冰箱里,怎么把大象放出来,自己去动手试试吧!
最后,奉上各类建筑净高的要求,拿走不谢!
1.楼梯净高要求
1.1楼梯平台上部及下部过道处的净高不应小于2m,梯段净高不宜小于2.2m;
1.2楼梯净高为自踏步边缘(包括最低和最高一级踏步边缘线以外0.3m范围内)量至上方突出下缘间的垂直高度。

2.车库净高要求

净高指楼地面表面至顶棚或其他构件地面的距离,未计入设备及管道所需空间。
3.办公建筑净高要求
3.1根据办公建筑分类,办公室的净高应满足:
一类办公建筑不应低于2.7m;
二类办公建筑不应低于2.6m;
三类办公建筑不应低于2.5m;
3.2办公建筑的走道净高不应低于2.2m,储藏间净高不低于2.00m;
3.3办公建筑的门应符合下列要求:
门洞口宽度不应小于1.00m,高度不应小于2.10m。
4.住宅净高要求
4.1卧室、起居室(厅)的室内净高不应低于2.40m,局部净高不应低于2.10m,局部净高的面积不应大雨室内使用面积的1/3.利用坡屋顶内空间做卧室、起居室(厅)时,其1/2使用面积的室内净高不应低于2.10m;
4.2室外窗台距楼面、地面的净高低于0.90m时,应有防护措施。六层及六层以下住宅的阳台栏杆净高不应低于1.05m;七层及七层以上住宅的阳台栏杆净高不应低于1.10m;阳台栏杆应有防护措施,防护栏的垂直栏杆间净距不应大于0.11m。
Revit中文网作为国内知名BIM软件培训交流平台,几十万Revit软件爱好者和你一起学习Revit,不仅仅为广大用户提供相关BIM软件下载与相关行业资讯,同时也有部分网络培训与在线培训,欢迎广大用户咨询。
网校包含各类BIM课程320余套,各类学习资源270余种,是目前国内BIM类网校中课程最有深度、涵盖性最广、资源最为齐全的网校。网校课程包含Revit、Dynamo、Lumion、Navisworks、Civil 3D等几十种BIM相关软件的教学课程,专业涵盖土建、机电、装饰、市政、后期、开发等多个领域。
需要更多BIM考试教程或BIM视频教程,可以咨询客服获得更多免费Revit教学视频。
本文版权归腿腿教学网及原创作者所有,未经授权,谢绝转载。
上一篇:Revit技巧 | revit弧形的管道怎么画?Revit弧形管道应用实践
下一篇:Revit技巧 | revit的视图范围是什么意思?Revit小技巧|关于“视图范围”
推荐专题