下载app免费领取会员
Revit视图范围
在Revit使用过程中,有时候某些图元看不到,想要调整下视图范围,

但是看了又看,有时候把自己都搞蒙了,今天就来理解下(其实不用多说,给一张图就完全明白了)。

注:
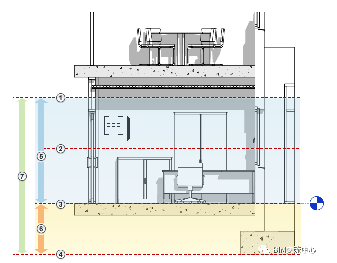
1.顶部
2.剖切面
3.底部
4.偏移量(从底部)
5.主要范围
6.视图深度
7.视图范围
是不是发现一张图,再加上注释,就恍然大悟了。
视图范围是控制对象在视图中的可见性和外观的水平平面集。每个平面和天花板投影平面视图都具有视图范围"视图属性,该属性也称为可见范围;
水平平面为"顶部平面”、“剖切面"和“底部平面”
顶剪裁平面和底剪裁平面表示视图范围的最顶部和最底部的部分
剖切面是确定视图中某些图元可视剖切高度的平面(一般设为1200)
这三个平面可以定义视图范围的主要范围。
"视图深度”是主要范围之外的附加平面。可以设置视图深度的标高,以显示位于底裁剪平面下面的图元。默认情况下,该标高与底部重合。
Revit中文网作为国内知名BIM软件培训交流平台,几十万Revit软件爱好者和你一起学习Revit,不仅仅为广大用户提供相关BIM软件下载与相关行业资讯,同时也有部分网络培训与在线培训,欢迎广大用户咨询。
网校包含各类BIM课程320余套,各类学习资源270余种,是目前国内BIM类网校中课程最有深度、涵盖性最广、资源最为齐全的网校。网校课程包含Revit、Dynamo、Lumion、Navisworks、Civil 3D等几十种BIM相关软件的教学课程,专业涵盖土建、机电、装饰、市政、后期、开发等多个领域。
需要更多BIM考试教程或BIM视频教程,可以咨询客服获得更多免费Revit教学视频。
本文版权归腿腿教学网及原创作者所有,未经授权,谢绝转载。
上一篇:Revit技巧 | revit净高分析操作方法:仅需三步的Revit净高检查
下一篇:Revit技巧 | Revit螺母要怎么做?教你快速学会Revit画螺母!
推荐专题